These images are used in good faith. The copyright owner may contact this website at mail@hamptonwickhistory.org.uk
Sandy Lane 2 Sptember 2014

















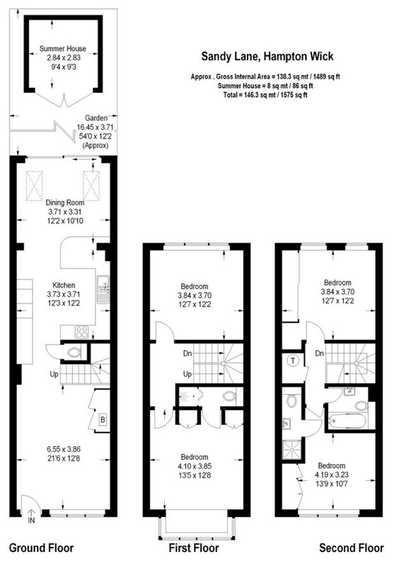
Estate Agent Publicity Material
These images are used in good faith. The copyright owner may contact this website at mail@hamptonwickhistory.org.uk
Sandy Lane 2 Sptember 2014